500 mq
4
2
Collercorvino (PE), nella frazione di Congiunti, proponiamo in Vendita INTERO IMMOBILE in corso di costruzione attualmente accatastato in F/3 e da ultimare a carico dell'acquirente.
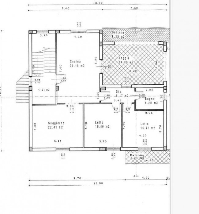
Il fabbricato si sviluppa su quattro livelli.
Al piano seminterrato troviamo una grande cantina con annesso garages doppio.
Al piano terra il progetto prevede un appartamento con ingresso, soggiorno o salotto, cucina abitabile, due camere da letto matrimoniali, un bagno, una comoda loggia e due balconi.
Al piano primo il progetto prevede un secondo appartamento come sopra descritto.
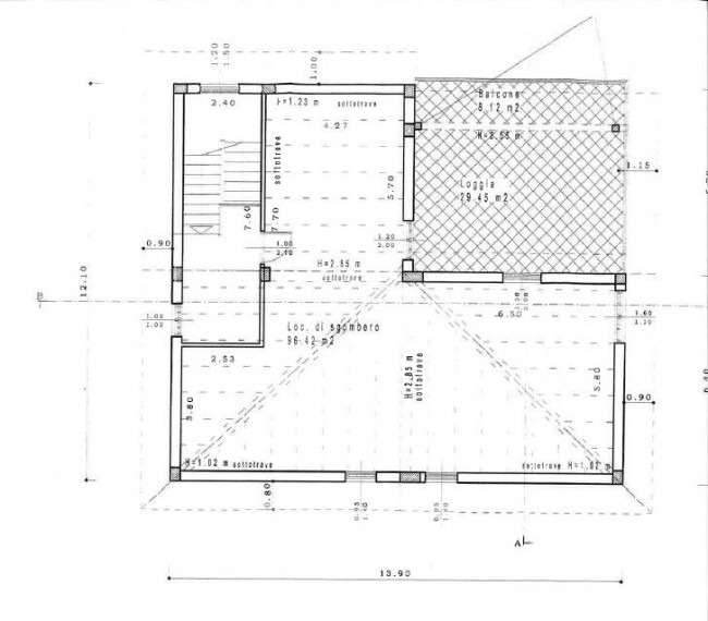
Al piano secondo troviamo un grande locale mansardato con possibilità di realizzare altre tre camere e due bagni.
Giardino privato perimetrale intorno a tutto il fabbricato.
Non farti sfuggire questa occasione! Chiama subito per info e visite KRISTEL Studio Immobiliare 388 - 8775144

500 mq
4
2